8/07/2025- Home
- About Us
- School Expansion - PROJECT 22
School Expansion - PROJECT 22
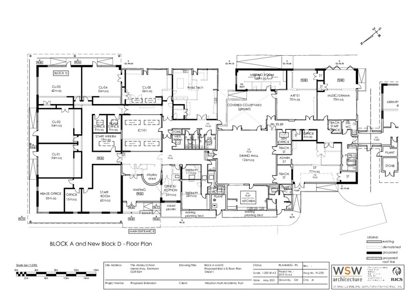
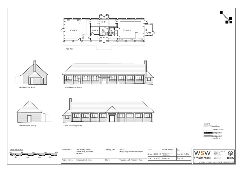
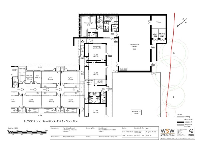
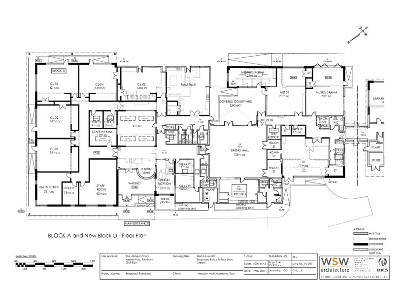
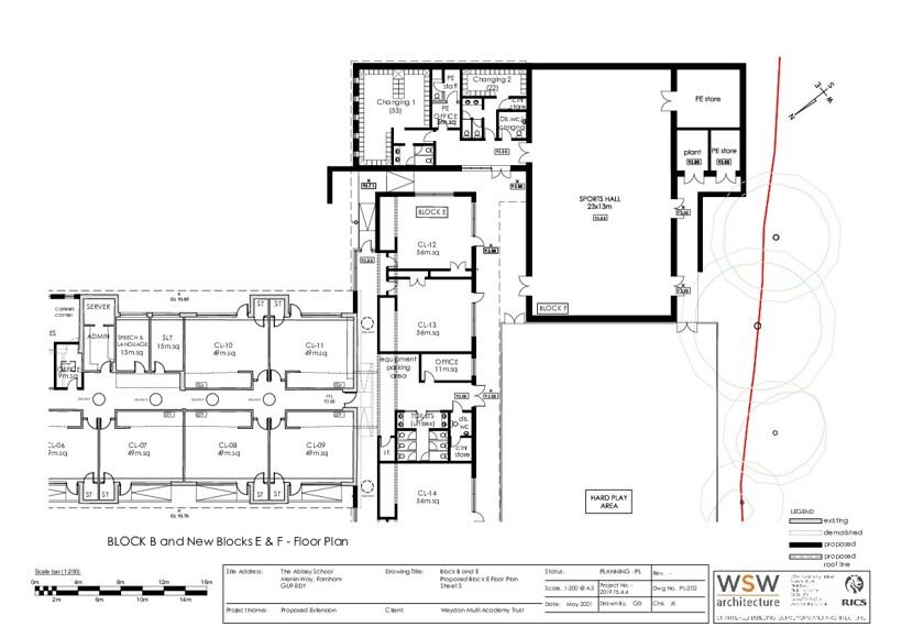
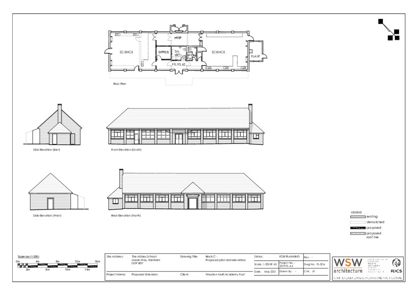
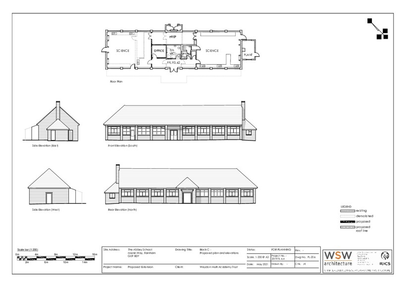
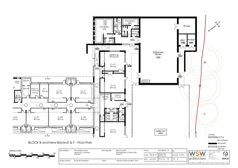
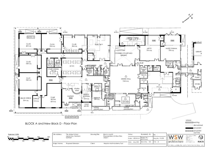
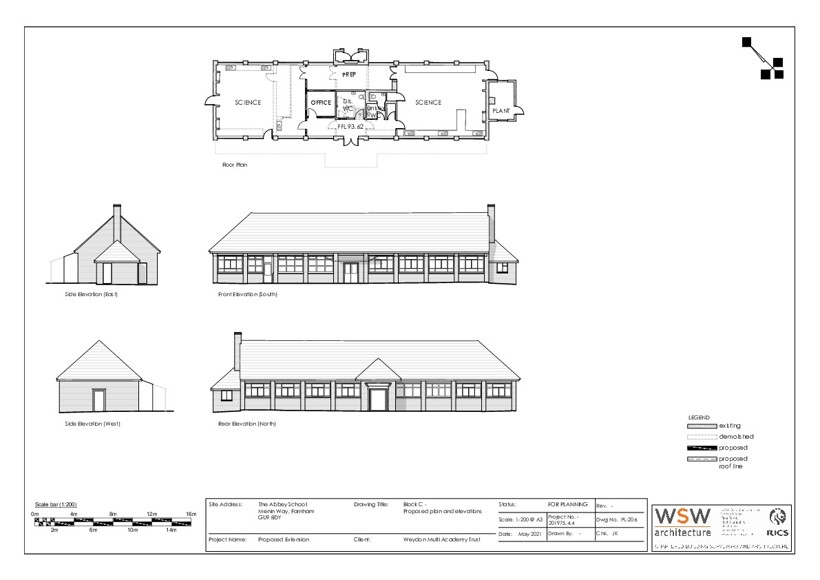
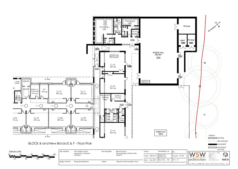
The Abbey benefitted from huge investment as we expanded from a 2 to 3 form entry school to support Surrey County Council’s SEND Sufficiency Strategy. The building works were completed ready for September 2024 and the gradual increase in numbers of students in September 2025.
‘Project 2022’ provided The Abbey with:
- 15 x general classrooms (nine of these being brand new)
- A brand-new specialist Computing classroom
- A brand-new Food Technology classroom
- A brand-new specialist Art room
- A brand-new specialist Music/Drama classroom
- A brand-new Design Technology classroom
- Two specialist Science labs (one of these will be brand-new)
In addition, there is:
- A full size sports hall and two new PE storage areas
- A brand-new multi-use games area (MUGA)
- A brand-new staff room
- A brand-new school office
- A new, fully-furnished waiting area for parents, carers and visitors to the school
- A brand-new conference/meeting room
- 4 additional therapy rooms
- New boys’ and girls’ PE changing rooms
- Five additional offices
- Two new disabled toilets
- A state-of-the-art staff workroom
This is a really exciting time for The Abbey as we watch the transformation of our school allowing us to expand and flourish in our new buildings with their first-class technology. Below are images of some of the plans together with a few photos taken throughout the project. There is a regular blog in the news area of the website which followed the progress of the works with updates and lots more pictures.
Project 22 News Blogs and Photos
As part of Project 22 we have completely refurbished our IT network and systems across the school. More than £200,000 has been spent on achieving this. All classrooms are now equipped with state-of-the-art interactive whiteboards, wi-fi and an internet-based phone system. Every student has also been provided with their own Chromebook fully funded by the school to aid their learning which came at no cost to our parents. These are regularly used in lessons.





























